Rif.593Z Calenzano, in zona centrale prossima ai principali
Dettagli
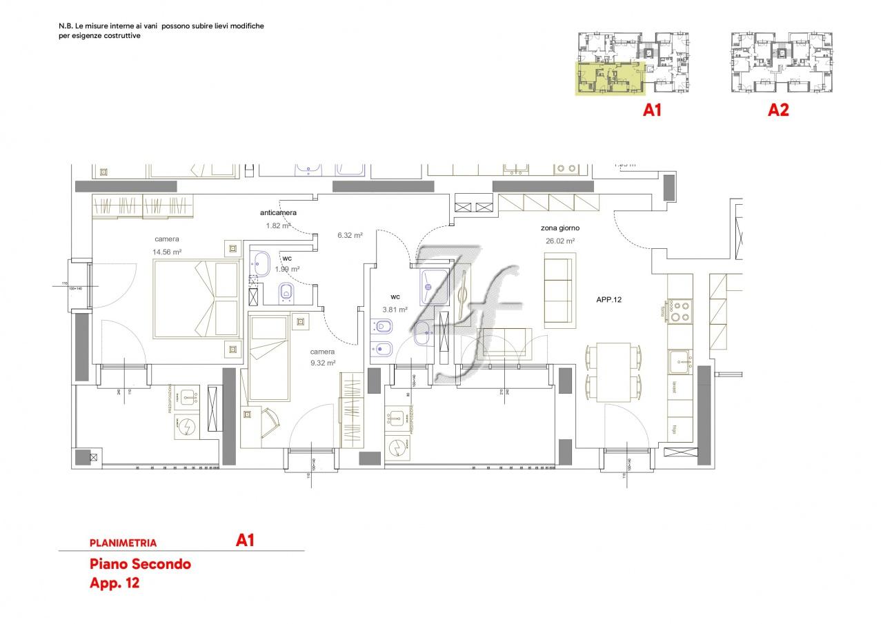
                                      Rif.593Z
Calenzano, in zona centrale prossima ai principali servizi, proponiamo in vendita 3 VANI di NUOVA costruzione. 
L'immobile posto al piano secondo sviluppa una superficie di circa mq 85,00 ed è composto da luminoso soggiorno con angolo cottura da cui si accede allo spazioso terrazzo,camera matrimoniale con accesso al secondo terrazzo, camera singola oltre due servizi di cui uno finestrato.
Completa la proprietà cantina di circa mq 21,00 e posto auto coperto. 
Ottimo capitolato con riscaldamento a pavimento, climatizzazione di serie, cappotto termico e infissi in legno con vetrocamera a taglio termico e acustico. 
La consegna è prevista entro fine 2026. 
Classe energetica A2. 
SCONTO SISMA BONUS: EURO 34.560,00 detraibili in 10 anni su IRPEF.
Richiesta Euro 410.000,00.
Maggiori informazioni, piantine, progetto e rendering in agenzia.
Rif.593Z
PER QUALSIASI INFORMAZIONE CONTATTARE 
AGENZIA IMMOBILIARE ZOPPI SAS 
055/8879255 - 055/8877483
info@immobiliarezoppi.it www.immobiliarezoppi.it                                      
                                      Richiedi informazioni  
                                    
di Silvia Zoppi e C. s.a.s.
Via di Prato, 39/A
50041 Calenzano Firenze
Tel/fax: 055 8879255
(r.a 4 linee)
E-mail:
info@immobiliarezoppi.it

 
                                              
                                              
                                              
                                              
                                              
                                             